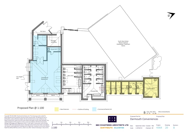
Dartmouth Town Council has announced the refurbishment and extension of the public toilets in Royal Avenue Gardens.
The new changes to the toilets will include a reconfiguration to add an extension on the side of the building and upgraded disabled access toilets with state-of-the-art equipment.
The renovation of the toilet block will also include a retail outlet.
The retail outlet will be leased by Dartmouth Town Council but not operated by them.
A spokesperson for Dartmouth Town Council said: "While other councils are closing a lot of public toilets due to financial pressures and time management. Dartmouth Town Council are taking a more proactive approach to secure and ensure that the facilities are available to benefit the town’s businesses and visitors all year round while improving access for people with disabilities."

Currently, the cost of running the toilets is sixty thousand pounds per year.
With the addition of the turnstiles, this has been reduced to twenty thousand. The aim of the income from the additional rental unit is that the toilet will become self-funding, meaning no taxpayer money would be spent on the running costs of the public toilets.
Dartmouth Town Council say they will endeavour to receive funding towards the project from the Government for disabled access initiatives and other local sources.
It is hoped that the upgrade will encourage longer stays by visitors, improve the services for local residents and make life easier for so many families that struggle to take disabled loved ones out without the stress and worry of being able to access the facilities they need.





Comments
This article has no comments yet. Be the first to leave a comment.